Виготовляємо теплотехнічне обладнання, у тому числі пастеризаційно-охолоджувальні установки ПОУ-КМЗ на базі теплообмінників, відцентрових насосів, клапанів, виготовлених світовими лідерами в даній галузі, такими як AlfaLaval, APV, GEA, Inoxpa та іншими.
Розрахунок і підбір теплообмінника, насоса та інших компонентів робиться за допомогою спеціалізованих програм досвідченими фахівцями підприємства під контролем фірми AlfaLaval.
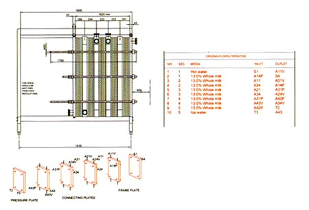
Програма розрахунку теплообмінника дозволяє підібрати необхідний типорозмір, кількість і тип пластин, визначити виходи і входи продукту, гарячої води і лід-води.
Залежно від заданого опору теплообмінника підбираються насоси, враховуючи необхідність підтримання підвищеного тиску після секції пастеризації.
Типові рішення і завдання:
- пластинчасті охолоджувачі молока, сироватки, вершків;
- пастеризаційно-охолоджувальні установки для молока, сироватки, вершків;
- термізатори;
- репастерізатори;
- системи рекуперації тепла.
|
Проектування та виготовлення ПОУ-КМЗ |
|
|
|
Все обладнання пастеризаційної установки зібрано на загальній рамі. За бажанням Замовника, установка може комплектуватися автономною автоматизованою мийкою, що складається з насосів-дозаторів, щупів і інжекційних клапанів. Мийка здійснюється автоматично шляхом натискання кнопки "МИЙКА" по готовності пастеризатора до неї.
При проектуванні виконуються умови:
- коефіцієнт рекуперації - не нижче 91%;
- різниця температур гарячії води і продукту в секції пастеризації не більше 1°С;
- в пастеризований продукт виключене попадання непастеризованого продукту за рахунок використання допоміжного насосу;
- система управління і автоматизації побудована на базі контролера і периферії Siemens;
- встановлений редукційний клапан на виході для захисту від перепаду тиску;
- при необхідності можлива видача продукту з різними температурами (34-99°С);
- для реєстрації параметрів роботи установки використовується безпаперовий реєстратор;
- ряд по продуктивності, м3/ч: 5, 10, 15, 20, 25, 30, 35 або можлива інша продуктивність, за вимогами Замовника;
Управління процесом пастеризації здійснюється на базі контролера Siemens. Система автоматизації дозволяє підтримувати встановлену температуру пастеризації з відхиленням не більше 0,3 °С. Продукт, температура якого при виході із секції пастеризації нижче встановленої, повертається на повторну пастеризацію.
Пластинчастий теплообмінний апарат має секції, в яких здійснюються такі процеси: пастеризація (нагрівання продукту до температури пастеризації), охолодження водою, охолодження розсолом або крижаною водою, рекуперація (теплообмін між гарячим і холодним продуктами), секція другого нагріву (для ділянок ЦМП або перед подачею молока в сирні ванни (котли).
